New 3 bedroom affordable priced villa in Berawa $195,000 $175,000


Current Price: $175,000
New Price:
Rate data provided daily by European Central Bank
Beds
3
Baths
2.00
M2
210
Lot Size
105
Lot Acres
2,260.00
Year Built
2014
Heat
Leasehold until 2043
Roof
Shingles

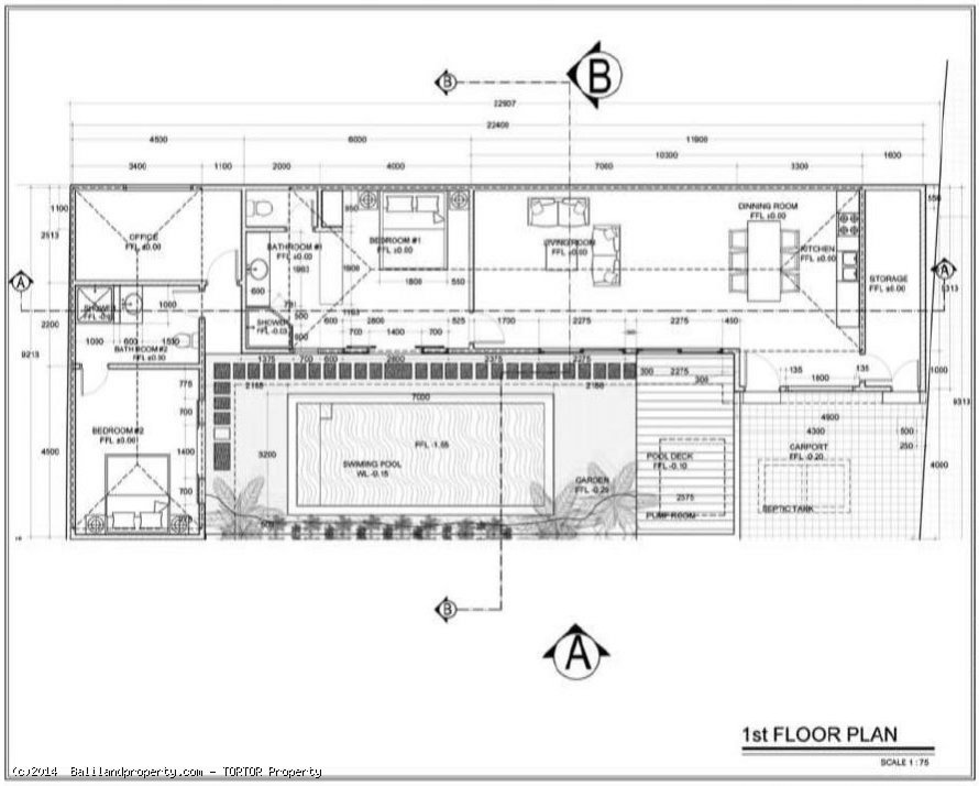
Finished in April 2014, this 2+1 bedroom tropical holiday home is conveniently located in the town of Berawa Canggu. There are 2 similar adjoining villas on this private plot, sharing ample parking space. One villa is already sold so only one still left for the quick decision maker. It is only a short drive to Perancak beach, around 5 minutes to the Canggu Club and approximately 10 minutes to Petitenget/Seminyak.

Details

Land area: 210 m2

Built area: 105 m2

Ownership: leasehold up to February 2043

Foundations: reinforced concrete, columns and beams

Roof and ceiling: Sirap roof tiles, ceiling gypsum 9mm with painting Mowilex or equivalent

Flooring: tiles in bedrooms, dining room, living room and bathrooms 40cm x 40cm Romans tiles, pool deck in Bangkirai wood, palimanan stones on garden pathway, 20cmx20cm paving stones for the carport

Walls and structure: red bricks structure, plastered walls for indoor and outdoor walls, wall tiles stones for showers in bathrooms, Dulux painting finishing or equivalent

Doors and Windows: doors in kamper wood, sliding and opening doors with 6mm glass, windows with 6mm
glass

Swimming Pool: green stones 10x10cm on walls and floor, palimanan on top and stairs, sand filter and pump by Hayward

Sanitary Fixtures & Water Supply: Elite or equivalent for all bathrooms fixtures, Ariston water heater of 80 liters (or more),Water tank of 700 liters (or more)

Telephone, TV, lighting, Electric System: telephone line socket x 1, TV sockets x 3, electric sockets in all rooms, 5500 Watts total capacity. All equipment are Panasonic fittings. Light fittings and bulbs are included.

Garden: tropical garden

Air Conditioning and fans: 2 bedrooms equipped with individual air conditioner LG 1 PK, 2 Panasonic ceiling fan

Kitchen: fully equipped, American fitted kitchen wooden made, fridge LG or equivalent 250 L (or more), microwave, built-in stove Modena or equivalent, Sink Elite or equivalent with tap (hot/cold water), 1 water dispenser Sanken or equivalent

Bedroom 1: wooden made 160cm bed with 2 bed tables including mattress, 2 bed tables lights, curtains, wooden wardrobe

Bedroom 2: wooden made 160cm bed with 2 bed tables including mattress, 2 bed tables lights, curtains, wooden wardrobe

Office: wooden made 90x200cm bed including mattress, 1 bed table, office table, stool Open living: 6 seater dining table, 6 dining chairs, sofa set for 6 people, 1 wooden TV cabinet, 1 coffee table, 1 LCD flat screen TV 42” LG or equivalent, 1 DVD player LG or equivalent

Outdoor furniture: 2 bean bags.


Interior Amenities
Address Hidden
Canggu, Badung
Indonesia
Region: Berawa
Sale Type: FOR SALE
Ref #: pelam
Category: Homes
Beds
3
Baths
2.00
M2
210
Lot Size
105
Lot Acres
2,260.00
Heat
Leasehold until 2043
Fuel
3 x 7 metres
Roof
Shingles
Year Built
2014
School District
Canggu International School
Style
Contemporary
Garage Size
4
Address Hidden
Canggu, Badung
Indonesia
Region: Berawa
Sale Type: FOR SALE
Ref #: pelam
Category: Homes

Please complete the form below to request a showing for this property. We will review your request and respond to you as soon as possible. Please add any additional notes or comments that we will need to know about your request.

 
Address Hidden
Canggu, Badung
Indonesia
Region: Berawa
Sale Type: FOR SALE
Ref #: pelam
Category: Homes

If you would like to send this property to a friend that you think may be interested, please complete the form below. To send this property to multiple friends, enter each email separated by a comma in the 'Friends Email' field.

 
Address Hidden
Canggu, Badung
Indonesia
Region: Berawa
Sale Type: FOR SALE
Ref #: pelam
Category: Homes
The particulars and photographs shown on this website are supplied for information only and shall not be taken as a representation in any respect on Bali land property or the agent or its related entities. These details, whilst believed to be accurate are provided for guidance only and do not constitute any part of an offer or contract. Intending purchasers should not rely on them as statements of representation of fact, and must satisfy themselves by inspection or otherwise as to their accuracy.